酒田市上本町貸家

名称酒田市上本町貸家
所在地酒田市上本町4番19号
構造木造 ガリバニウム鋼板葺 2階建
種類戸建て
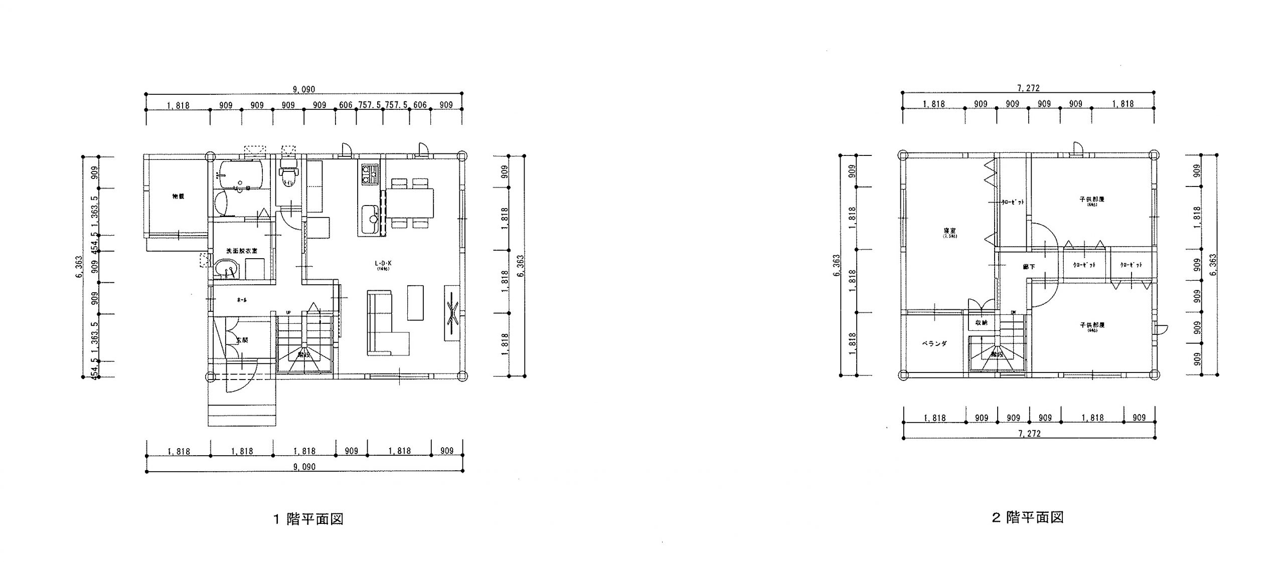
間取り3LDK
設備AC×2,給湯、追焚付、SW,UB、B/T、IH,WS、照明、洗化、物置、ベランダ
駐車場カーポート2台(通路消雪設備付)
1世帯当たり占有面積92.55㎡(27.99坪)
ガスLPガス
築年月平成26年5月新築
学区浜田小、第二中
取引態様貸主
入居予定R4年1月下旬
入居条件賃料:80,000円・敷金:80,000円・仲介料:なし・合計160,000円
その他借家賠償保険加入/賃貸保証会社加入